Appartement
119m²
3 chambres
1 Garage
1 Parking extérieur
1 Terrasse

Descriptif

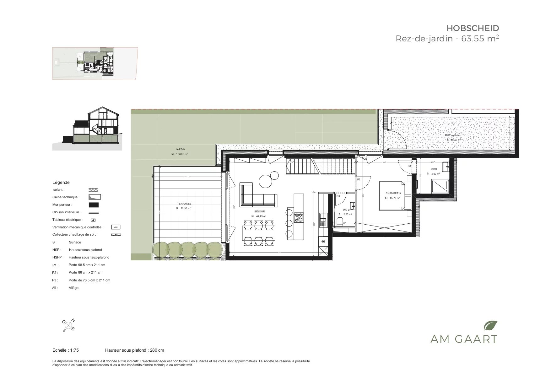
Hobscheid

AM GAART - LOT 2 DUPLEX 01

DPE : AAA

878 568,00 €

Pour plus d’informations sur ce bien, vous pouvez prendre contact avec

Afafe FAHI

Conditions exceptionnelles jusqu'au 31/01/2026 :

Prix remisé TTC 3% : 878.568 €
Prix initial TTC 3% : 898.276 €

L’esprit maison au cœur de la nature.

Découvrez ce magnifique duplex situé dans une petite résidence de seulement 4 logements, nichée en pleine nature à Hobscheid. Une opportunité rare alliant confort, intimité et qualité de vie.

Les atouts du bien :

• Duplex au style maison : profitez d’un espace de vie généreux avec une belle ouverture sur l’extérieur en rez-de-jardin.

• Résidence à taille humaine : tranquillité et convivialité au quotidien.

• Cadre verdoyant et paisible : idéal pour une vie de famille ou un quotidien ressourçant.

• Classe énergétique AAA : logement performant, économique et respectueux de l’environnement.

• Agencement optimal : grande pièce à vivre lumineuse, 3 chambres, un espace bureau, 2 salles de bains, 2 WC.

• Extérieurs privatifs : terrasse, jardin, rangement.

• Stationnement & rangements : garage privé, cave et emplacement extérieur inclus.

Intéressé(e) ? Contactez Afafe FAHI
📞 (+352) 691 112 111
📧 afafe.fahi@tracol.lu

nos biens similaires