Maison
148m²
3 chambres
1 Garage
1 Terrasse

Descriptif

Belvaux

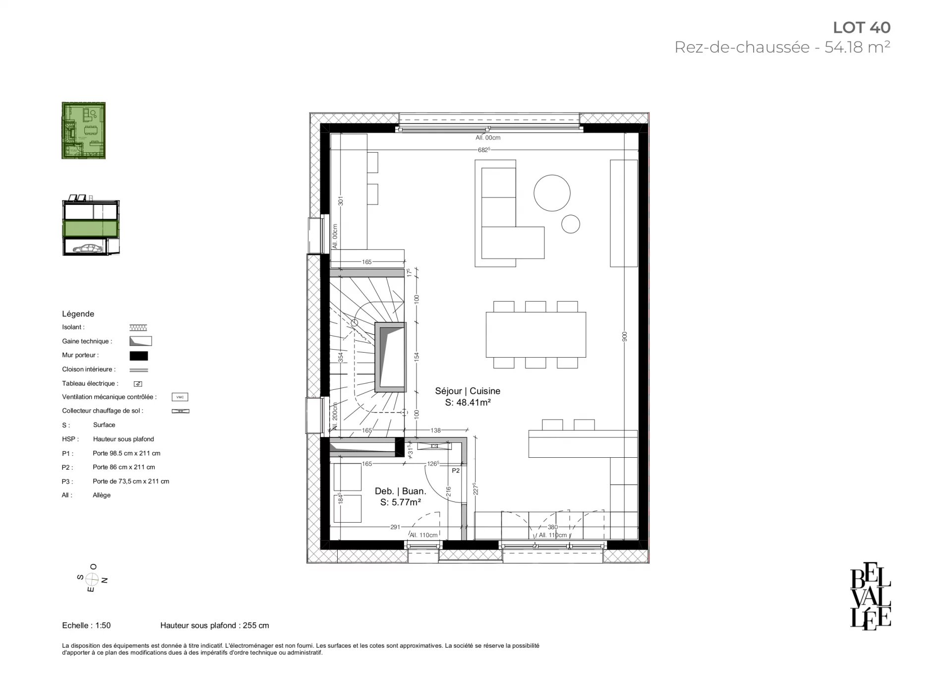
BELVALLEE - MAISON 40

DPE : ABA

951 144,00 €

Pour plus d’informations sur ce bien, vous pouvez prendre contact avec

Tracol IMMOBILIER

Nouvelles maisons à vendre – Lotissement Belvallée à Belvaux.

Au cœur du quartier résidentiel de Belvallée, découvrez cette maison libre de 3 côtés, située au sein d’un ensemble élégant de 4 maisons contemporaines.

Les points forts de la maison :

• Emplacement idéal : à mi-chemin entre le quartier dynamique de Belval, les commodités du quotidien et les grands axes routiers.

• Environnement paisible et verdoyant : à deux pas du parc du Gaalgebierg, parfait pour les familles ou les amateurs de nature.

• Maison d’angle, sans mitoyenneté sur 3 côtés, offrant plus de lumière naturelle et de confort.

• Classe énergétique ABA – haute performance thermique pour un logement économique et écologique.

• Espaces bien pensés : sous-sol complet avec garage, rangements, buanderie, beau jardin, vaste séjour lumineux et 3 chambres confortables.

_____________________

Prix affiché TVA 3 % (sous conditions)
Prix TVA 17 % : 1.001.144 €


Intéressé(e) ? Contactez-nous !
📞 Afafe FAHI – (+352) 691 112 111
📧 afafe.fahi@tracol.lu

nos biens similaires