Maison
155.31m²
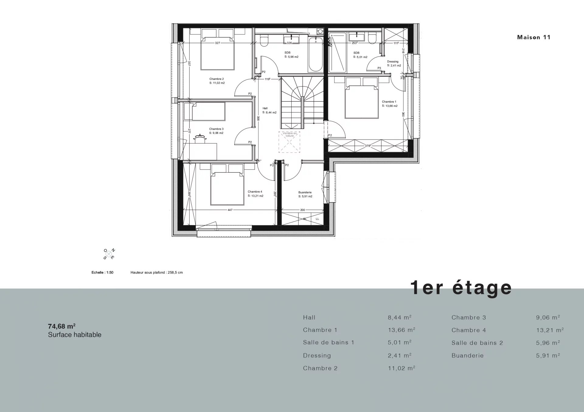
4 chambres
1 Garage
1 Terrasse

Descriptif

Sprinkange

CORNER GARDEN - MAISON 11

DPE : ABA

1 040 625,00 €

Pour plus d’informations sur ce bien, vous pouvez prendre contact avec

Marc MEYERS

Maison unifamiliale à vendre – Corner Garden, Sprinkange (Commune de Dippach)

Située dans le quartier résidentiel prisé de Corner Garden à Sprinkange, cette maison unifamiliale offre un cadre de vie paisible, verdoyant et idéal pour les familles. Vous profiterez de la tranquillité de la campagne, tout en restant à proximité immédiate des commodités et de la gare.

Les atouts de ce bien :

• Beau terrain offrant un agréable espace extérieur

• Environnement calme et verdoyant

• Accès facile aux transports en commun (proche de la gare)

• Grande pièce de vie lumineuse

• 4 chambres / 2 salles de bain/douche

• Garage et nombreux espaces de rangement

Prix affiché TVA 3 % (sous conditions)
Prix TVA 17 % : 1.090.625.-€

-----------

Intéressé(e) ? Contactez Marc MEYERS
📞 (+352) 691 556 405
📧 marc.meyers@tracol.lu

nos biens similaires